私たちは、多彩な物流サービスの提供で貴社の企業戦略を支えます

盤栄ホールディングス株式会社札幌三信倉株式会社

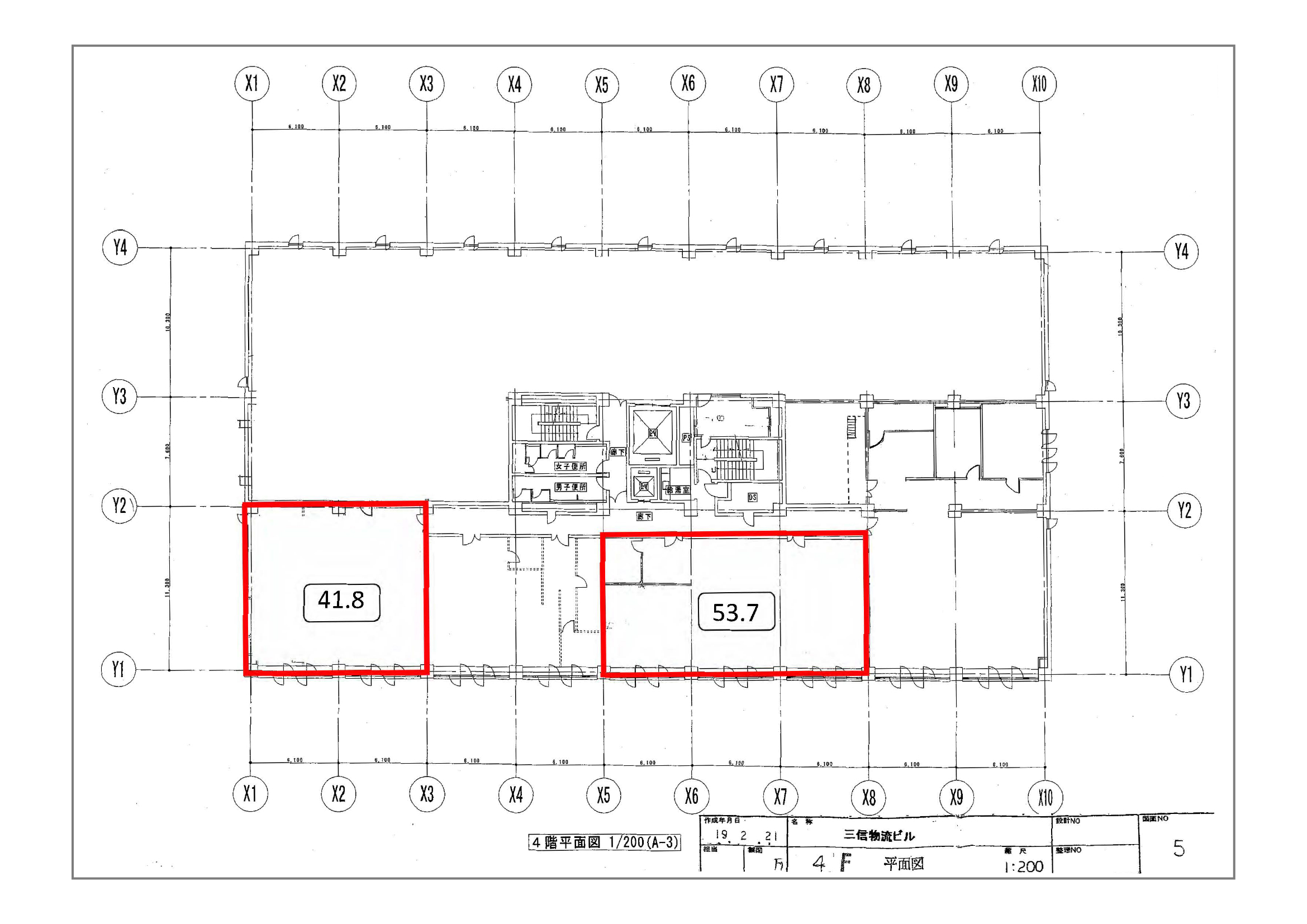
2026年2月入居可能予定のテナント空き情報

フロア 面積 駐車場 入居可能日
4階 137.94㎡(41.8坪) 複数台可能 2026年2月〜
4階 177.21㎡(53.7坪)

お問い合わせ先 TEL 011-833-3434

 

どうぞよろしくお願い致します。

© 2015 Sapporo Sanshin Warehouse Co., Ltd.